A UNIQUE SEMI DETACHED HOUSE situated in this highly favoured and sought after location just off the sea front/Longsands and well placed for easy access to local schools, shops and other amenities. In one of the most sought after locations, this house provides high quality family accommodation of a superior standard. The main features include a useful downstairs shower room/WC, superb main reception room and MAGNIFICENT 28' x 25'8" LIVING FAMILY KITCHEN with extensive range of fully fitted luxury wall and floor units. On the first floor there is a fantastic main bedroom with large en suite (originally a bedroom), along with a further two good size bedrooms (one with en suite shower room) and large family bathroom. On the top floor there are two further bedrooms, one of which has cloak/WC facilities. Enjoying gas central heating, double glazing, ample off road parking, attached garage and enclosed rear garden, only a close internal inspection will fully reveal the space and quality of the numerous improvements carried out by the present owners. First to see will buy!
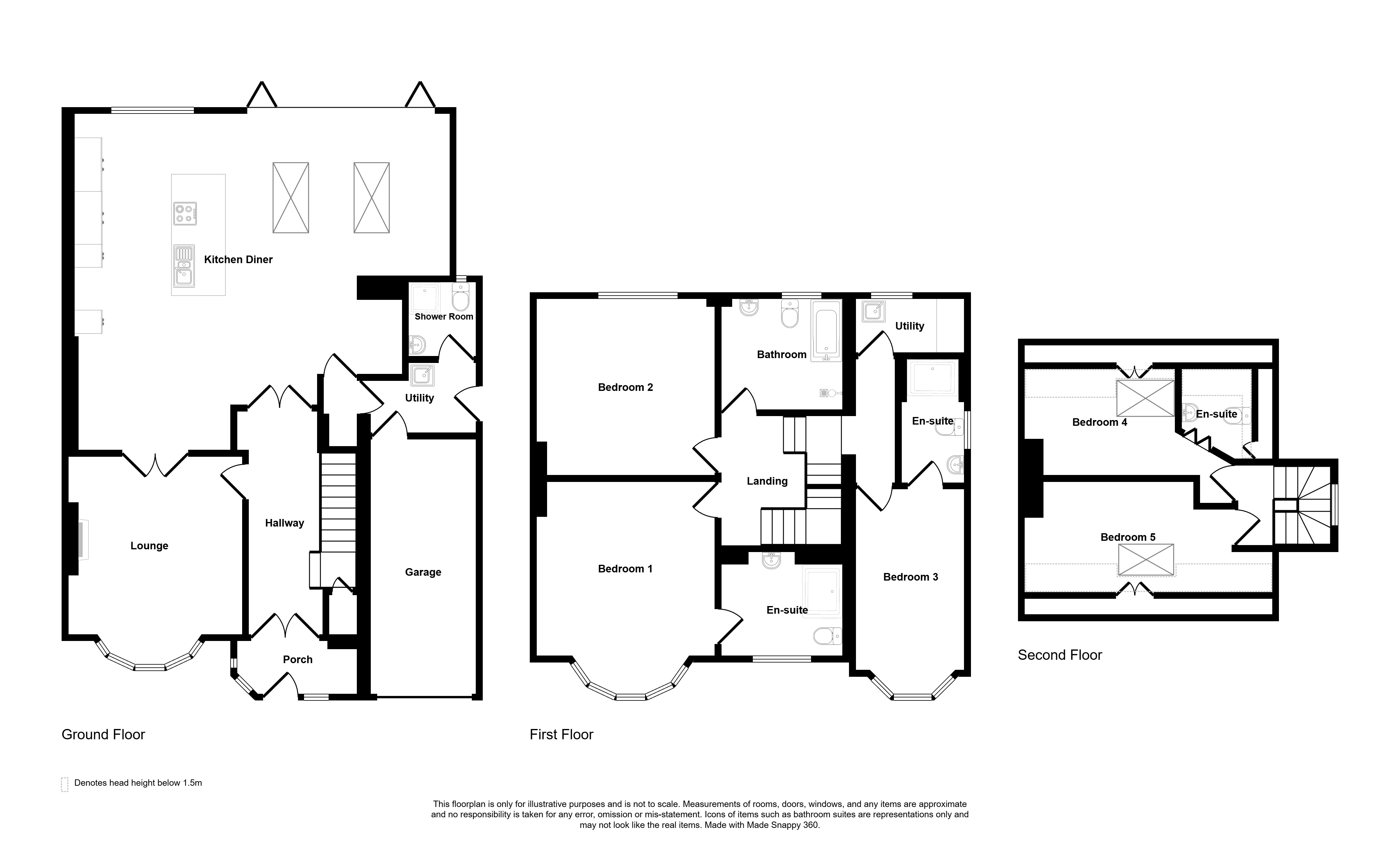
Ground Floor
Entrance Porch Ceramic tiled floor, composite entrance door and UPVC window.
Reception Hallway A good size reception hallway with feature white column radiator, built in cloaks cupboard, feature flooring.
Lounge 16'8" x 13'6" (5.08m x 4.11m). A magnificent main reception room with large walk-in double glazed bay window, feature display alcove, superb feature fireplace with decorative cast iron insert and raised hearth, TV point, cornicing and radiators. Double doors lead to living/dining kitchen.
Living/Dining Kitchen 28' x 25'8" (8.53m x 7.82m). A fabulous family kitchen that is spread over three areas:
Dining Area with feature exposed brickwork and superb built in fitted bar with power and lighting, exposed brickwork to one wall, feature wood plank flooring.
Family Entertaining Area with media wall, TV point, projector and drop down screen, five panel bi-fold doors provides great natural lighting with additional roof lanterns, matching feature wood plank flooring, exposed brickwork to one wall.
Kitchen Area Superb range of modern luxury wall and floor units with double glazed windows and lantern light providing great natural lighting, feature larger style central breakfast bar incorporating stainless steel sink unit with chrome mono block style mixer tap, breakfast bar with additional storage underneath and feature Dekton worktops. Built in stainless steel five ring hob, twin ovens, large American style stainless steel fridge freezer, integrated dishwasher, feature tall silver column radiator and matching wood plank flooring.
Additional Kitchen Photo
Dining Area
Living Area
Utility Area/Shower Room/WC Low level WC, wash hand basin, corner shower unit, splash tiling, spot lights and ceramic tiled floor.
First Floor
Landing
Main Bedroom 16' x 13' (4.88m x 3.96m). Including large walk-in double glazed bay window with fitted white venetian blinds, TV point, cornicing and radiator.
Luxury En Suite Shower Room/WC Larger style en suite comprising low level WC, feature wash hand basin on raised vanity unit with storage space below, large walk-in glass shower cubicle, lit display alcove, double glazed window, feature venetian blind, spot lights, chrome heated towel rail, extractor and matching tiled floor.
Bedroom Two 12'4" x 13' (3.76m x 3.96m). Feature wood plank style flooring, double glazed window with white venetian blind and white column radiator.
Bedroom Three 15'6" x 8'4" (4.72m x 2.54m). Currently used as a dressing room with large feature bay window with white venetian blind, spot lights and radiator.
Laundry Room With space for washing machine, tumble dryer and sink.
En Suite Shower Room/WC Modern low level WC, wash hand basin in vanity unit with storage space below, walk-in shower, full tiling with matching floor, spot lights, chrome heated towel rail, double glazed window.
Family Bathroom/WC A superb modern family bathroom with low level WC, wall hung wash hand basin with matching vanity unit and storage space below, bath in tiled surround with shower attachment, walk-in shower cubicle with glass wall, lit mirror, full matching tiling to walls and floors, double glazed window with fitted blind, chrome heated towel rail.
Second Floor
Landing Double glazed window provides great natural lighting.
Bedroom Four 16' x 8'3" (4.88m x 2.51m). A large bedroom with spacious double glazed Velux style window with fitted blind, fabulous natural lighting, eaves storage and radiator.
En Suite WC Low level WC, wash hand basin.
Bedroom Five 15'3" x 8'2" (4.65m x 2.5m). Large double glazed Velux window provides great natural lighting, fitted blind, eaves storage and radiator.
External Spacious driveway to front providing off road parking for at least three vehicles leading to attached garage. Good sized enclosed rear garden laid out mainly to lawns with large paved patio area, shed and side path storage.
Agent's Notes * Fabulous & sought After Location
* Just Off Sea Front
* Deceptively Spacious Accommodation
* Over Three Floors
* Two Shower Room En Suites
* plus additional WC En-suite
* Family Bathroom/WC
* Utility Area/Shower Room
* Laundry Room
* Ready to Move Into
* Luxury Kitchen
Tenure Freehold
Council Tax North Tyneside Council Tax Band E
Read less