ENJOYING ONE OF THE BEST PANORAMIC VIEWS OF NORTH SHIELDS FISH QUAY, a fabulous opportunity to purchase this modern purpose built FIRST FLOOR APARTMENT. Situated in this highly sought after location well placed for easy access to all amenities, the property would ideally suit young and old alike. The main features include a larger style lounge/diner with double glazed doors windows with access to small balcony area and fabulous views, a well fitted modern kitchen, two good sized bedrooms and a modern white bathroom/WC. In addition, the property enjoys gas central heating via radiators, upvc double glazing and secure under cover, off street parking and has the additional advantage of a useful storage pod and lift access to all floors.
One of the best we have seen with unrivalled views, a close internal inspection is essential to fully appreciate this highly sought after location and value for money on offer.
Ground Floor
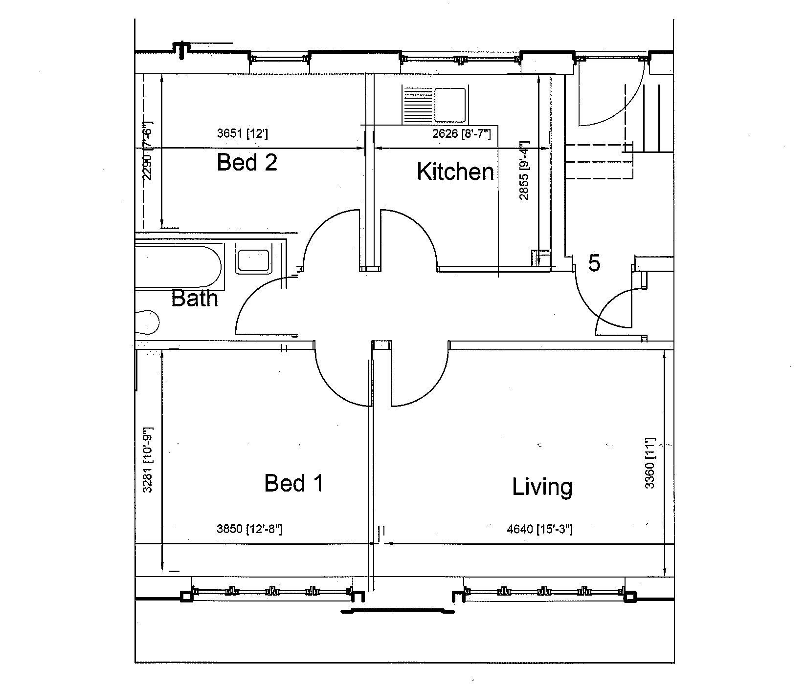
First Floor
Inner Hallway/Lobby Built in cloaks cupboard, entry phone system.
Living Room/Dining Room 15'3" x 11'10" (4.65m x 3.6m). Two sets of double glazed windows with fantastic river views and double glazed French doors provide easy access to small balcony area maximising river views and providing superb natural lighting, fitted blinds, TV point and radiator.
Additional Living/Dining Room Photo
Additional Living/Dining Room Photo
Balcony
Kitchen 9'4" x 8'7" (2.84m x 2.62m). Superb range of modern 'Grange' wall and floor units with granite style worktops to two sides, built in electric hob, oven and stainless steel extractor, stainless steel single drainer sink unit, plumbing for washing machine and dishwasher, built in fridge freezer, double glazed window, spot lights and central heating boiler.
Bedroom One 12'8" x 10'9" (3.86m x 3.28m). Range of luxury built-in wardrobes, double glazed window overlooking North Shields Fish Quay, fitted blinds and radiator.
Bedroom Two 12' x 7'6" (3.66m x 2.29m). Double glazed window and radiator.
Bathroom/WC Modern white low level WC, wash hand basin with vanity unit below, fitted mirror, panelled bath with shower and glass splash guard, spot lights and extractor fan.
Storage Pod Useful storage pod within garage/parking complex with bike racks.
External Allocated secure undercover parking.
View Photograph
Additional View Photograph
Lease & Maintenance Charges We understand the following applies
Leasehold: 125 years from 2019
Ground Rent: TBC
Service Charge: TBC
All prospective purchasers will need to verify this information with their legal advisor.
Council Tax North Tyneside Council Tax Band C
Mortgage Advice A comprehensive mortgage planning service is available via Darren Smith of NMS Financial Limited. For a free initial consultation contact Darren on 0191 2510011.
**Your home may be repossessed if you do not keep up repayments on your mortgage**
Location Map
Energy Performance Certificate EPC Rating B
Read less