AN EXTENDED THREE BEDROOM SEMI DETACHED HOUSE situated on Ealing Drive in Tynemouth, available with NO ONWARD CHAIN.
The property boasts a stunning extension to the ground floor and briefly comprises; entrance hall, cloakroom/WC, open plan lounge and dining room, and a wraparound extension providing space for a modern kitchen, living and dining areas. Upstairs there are three bedrooms and a modern bathroom/WC. Gas central heating and double glazing. There is driveway parking, garage and gardens. To arrange a viewing of this lovely family home call COOKE & CO.
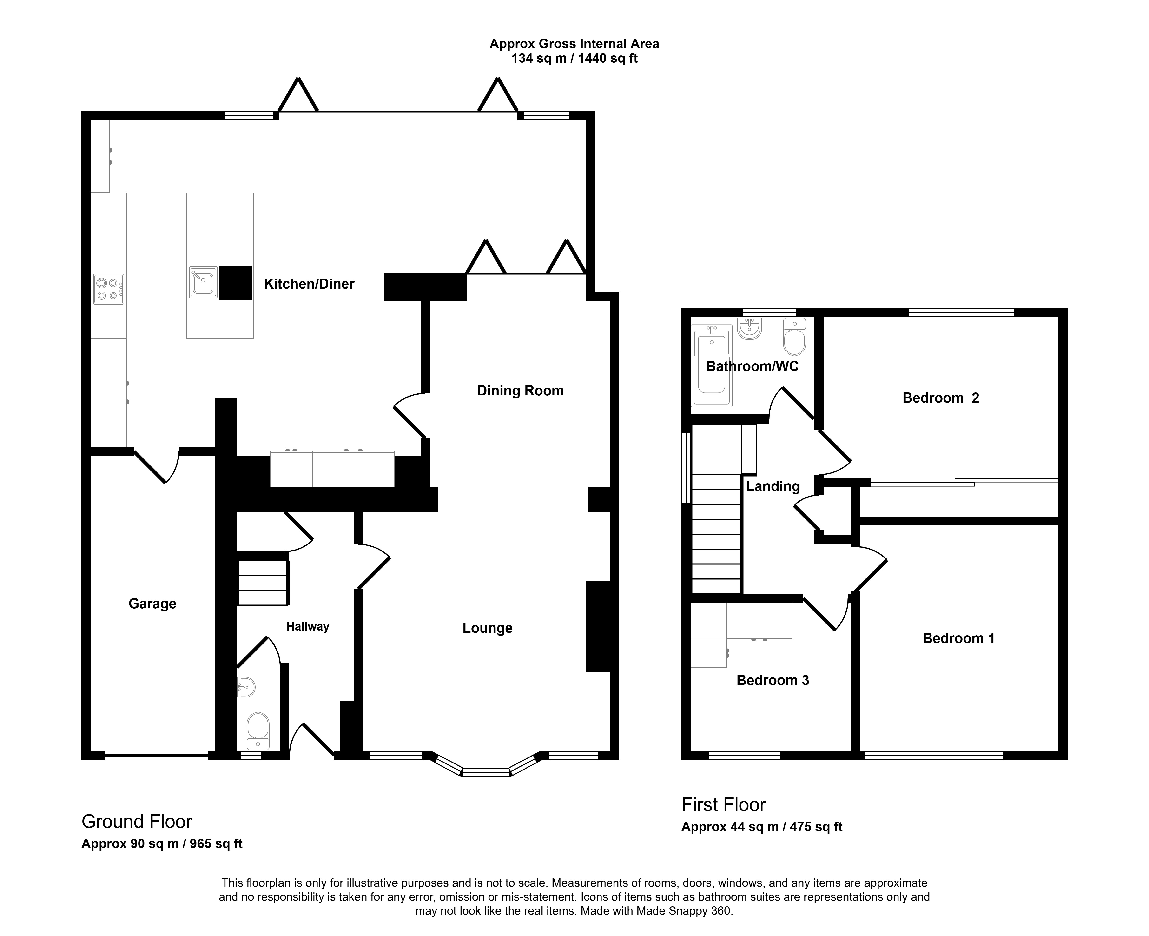
Ground Floor
Entrance Hall Part glazed composite entrance door, doors lead to the lounge and to the cloakroom/WC, radiator, staircase to the first floor.
Lounge 13'4" x 12'8" (4.06m x 3.86m). An open plan lounge and dining room with double glazed bay window to the front. Feature fire and chimney breast. Open to the dining area at the rear and radiator.
Additional Lounge Photo
Dining Room 10'5" x 10'1" (3.18m x 3.07m). Double glazed bi-fold doors to the rear leading to the orangery extension. Door to the side leading to the kitchen/living area and radiator.
Extended Kitchen & Orangery 27'6" x 18'8" (8.38m x 5.7m). The wrap around extension provides a stunning space with two glass atriums. The kitchen area is finished with modern wall and base units, two integrated electric ovens and microwave, integrated electric hob and extractor fan, integrated dishwasher, sink unit and breakfast bar, two old school radiators. There is living and dining space and bi-fold doors to the rear of the extension. Door leading to the garage.
Additional Kitchen Photo
Additional Orangery Photo
First Floor
Landing Doors lead to the three bedrooms and bathroom/WC. Built in cupboard, double glazed window to the side.
Bedroom One 12' x 11'1" (3.66m x 3.38m). Double glazed window to the front, fitted wardrobes and dressing table, radiator.
Bedroom Two 12'9" x 9'3" (3.89m x 2.82m). Double glazed window to the rear, fitted wardrobes and radiator.
Bedroom Three 9' x 8'2" (2.74m x 2.5m). Double glazed window to the front, fitted bedroom furniture and radiator.
Bathroom/WC 6'9" x 5'6" (2.06m x 1.68m). A modern bathroom fitted with a white suite comprising; panelled bath, low level WC and wash basin, tiled walls and tiled floor, double glazed frosted window to the rear and heated towel rail.
External To the front of the property there is a patterned concrete driveway allowing off street parking for two cars leading to the attached garage. To the rear the garden has a large patio area and a lawned area with summer house and garden shed, all with a fenced border.
Garage 14' x 8' (4.27m x 2.44m). Fitted with a roller shutter door, light and power supply.
Additional External Photo
Tenure Freehold
Council Tax North Tyneside Council Tax Band C
Mortgage Advice A comprehensive mortgage planning service is available via Darren Smith of NMS Financial Limited. For a free initial consultation contact Darren on 0191 2510011.
**Your home may be repossessed if you do not keep up repayments on your mortgage**
Read less