A SUPERB THREE BEDROOM DETACHED HOUSE situated in Blucher Road in Royal Quays, North Shields. The property has been meticulously maintained by the current owner and is in excellent condition throughout. Briefly comprising; entrance hall, open plan living room and dining room, conservatory, kitchen and ground floor WC. Upstairs there are three bedrooms, the main bedroom with en-suite and a family bathroom/WC. There is an integral garage and gardens to the front and rear. Gas central heating and double glazing. Situated just a short distance from the leisure centre with indoor and outdoor bowling greens and a short walk to the Marina. To arrange a viewing call COOKE & CO.
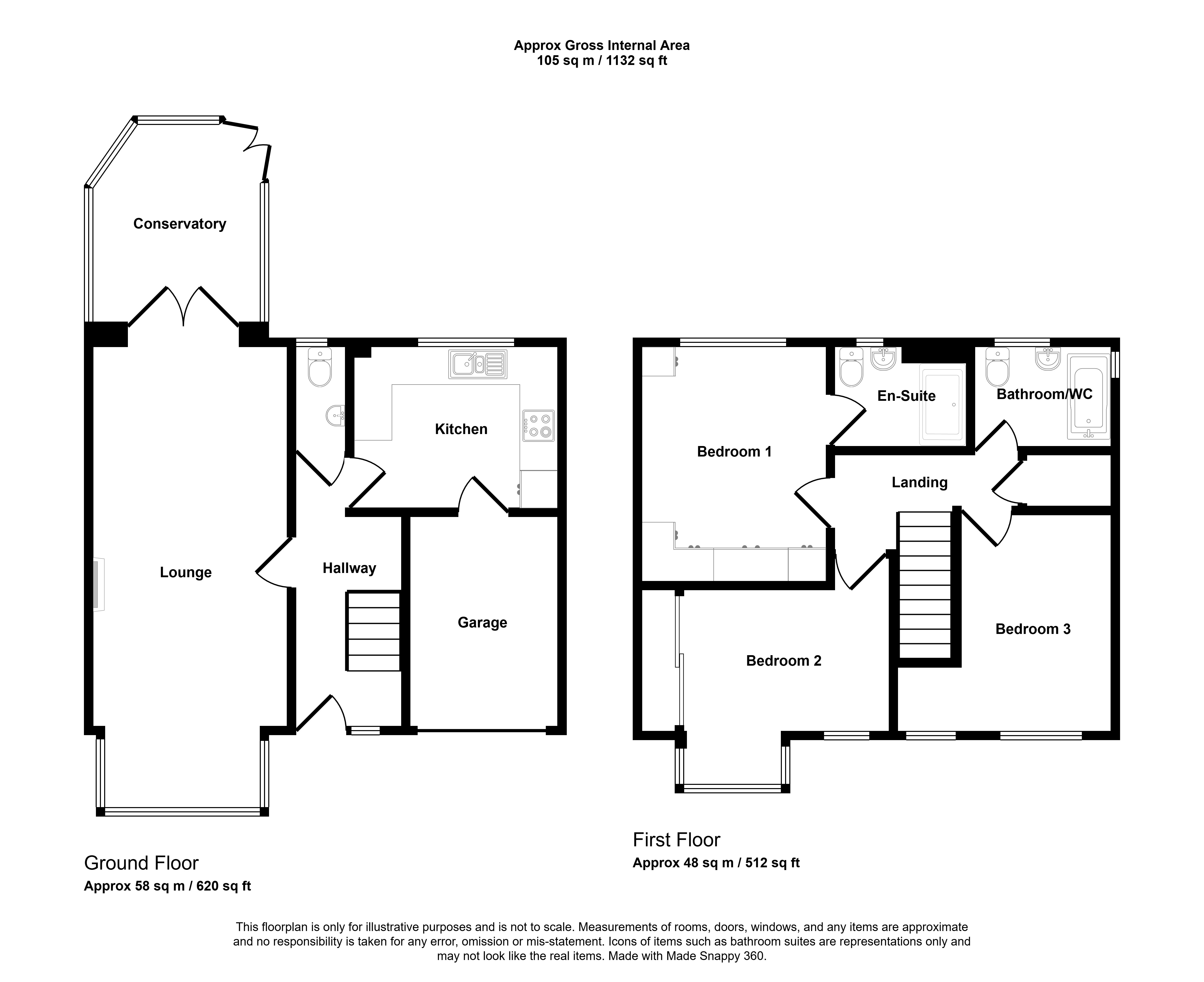
Ground Floor
Hallway UPVC entrance door, staircase to the first floor, radiator. Doors lead to the lounge, kitchen and ground floor WC.
Lounge & Dining Room 25'1" x 10'5" (7.65m x 3.18m). A lovely spacious open plan lounge and dining room. Providing plenty of space for a living area and a dining area which leads into the conservatory at the rear, radiators. Double glazed bay window to the front and double glazed French doors to the rear.
Additional Dining Room Photo
Additional Lounge Photo
Conservatory 11'7" x 10'6" (3.53m x 3.2m). A fantastic addition to the property overlooking the rear garden. Double glazed windows to the sides and rear and French doors leading out into the garden.
Kitchen 10'8" x 8'9" (3.25m x 2.67m). A modern kitchen fitted with a range of wall and base units, sink unit, integrated double electric oven and hob with extractor hood above, integrated dishwasher. Double glazed window to the rear, radiator. Door to the garage.
Ground Floor WC Fitted with a low level WC and wash basin, double glazed frosted window to the rear, radiator.
First Floor
Landing Doors lead to the three bedrooms and bathroom/WC. Access to the loft (which has been boarded and has power supply) via a drop down ladder.
Bedroom One 10'8" (3.25m) + wardrobes x 10' (3.05m). Double glazed window to the rear, fitted wardrobes and bedroom furniture, door to the en-suite, radiator.
En Suite Shower Room/WC 7' x 5'4" (2.13m x 1.63m). A modern en suite fitted with a shower, low level WC and wash basin, tiled walls and tiled floor, double glazed frosted window to the rear and heated towel rail.
Bedroom Two 11'3" x 10'7" (3.43m x 3.23m). Double glazed window and double glazed bay window to the front, fitted wardrobes with mirror fronted sliding doors and radiator.
Bedroom Three 11'9" x 11'2" (3.58m x 3.4m). Two double glazed windows to the front, radiator.
Bathroom/WC 7'3" x 5'6" (2.2m x 1.68m). A modern bathroom fitted with a white suite comprising; panelled bath with shower above, low level WC and wash basin, tiled walls and tiled floor, heated towel rail, double glazed frosted window to the rear.
External To the front of the property there is a low maintenance area for off street parking which has been finished with patterned concrete leading to the integral garage. To the rear there is a lovely private garden which is mainly lawned with a patio area and a summerhouse, all with a fenced boundary.
Garage 15'4" x 7'8" (4.67m x 2.34m). An integral garage with light and power supply, wall mounted combi boiler, door to the side leading to the rear garden.
Additional External Photo
Additional External Photo
Tenure Freehold
Council Tax North Tyneside Council Tax Band C
Mortgage Advice A comprehensive mortgage planning service is available via Darren Smith of NMS Financial Limited. For a free initial consultation contact Darren on 0191 2510011.
**Your home may be repossessed if you do not keep up repayments on your mortgage**
Location Map
Energy Performance Certificate EPC Rating C
Read less