A BEAUTIFUL 1930'S STYLE THREE BEDROOM SEMI DETACHED HOUSE situated in this highly favoured and sought after location. The property, ENJOYING WESTERLY FACING ASPECT TO THE REAR, has been tastefully modernised and upgraded by the present owners.
Read more
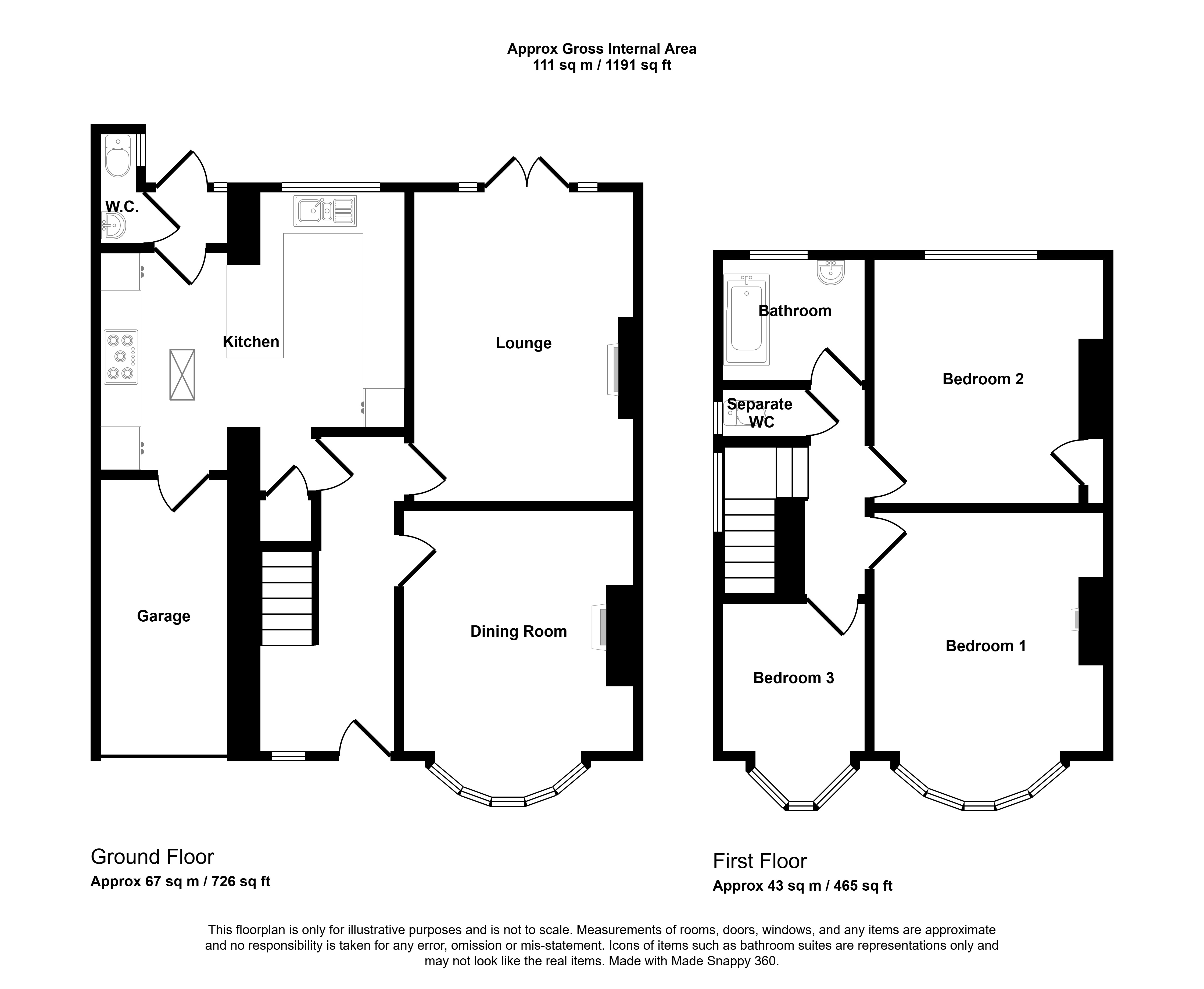
A BEAUTIFUL 1930'S STYLE THREE BEDROOM SEMI DETACHED HOUSE situated in this highly favoured and sought after location. The property, ENJOYING WESTERLY FACING ASPECT TO THE REAR, has been tastefully modernised and upgraded by the present owners. There are two good size reception rooms, a spacious extended kitchen and separate ground floor cloakroom/WC. On the first floor there are three good size bedrooms and a separate bathroom/WC with modern suite. The main building benefits from a new roof covering, as well as upvc double glazing and modern gas central heating with recently replaced boiler. Externally there is block paved parking for at least two vehicles and a beautiful well stocked mature rear garden with westerly facing aspect.
One of the best that we have seen for quite some time, an internal inspection is essential to fully appreciate the fantastic location and top quality modernisation/refurbishment that has been carried out.
Read less