A QUITE STUNNING BARN CONVERSION situated in Dukes Meadow in Backworth Village.
Providing over 1800 square feet of space, this amazing family home is one of a kind. Featuring a smart home system and wired sound system throughout, the property briefly comprises; open plan lounge and dining room with vaulted ceiling, modern kitchen and first floor games room. There are four double bedrooms, the master with recently renewed en suite, and a family bathroom/WC. There is a front garden and a south facing courtyard leading to a shared courtyard to the rear, plus an attached garage. Gas central heating and double glazing. Internal viewing is essential to appreciate the standard of finish and layout.
To arrange a viewing call COOKE & CO. Energy rating C.
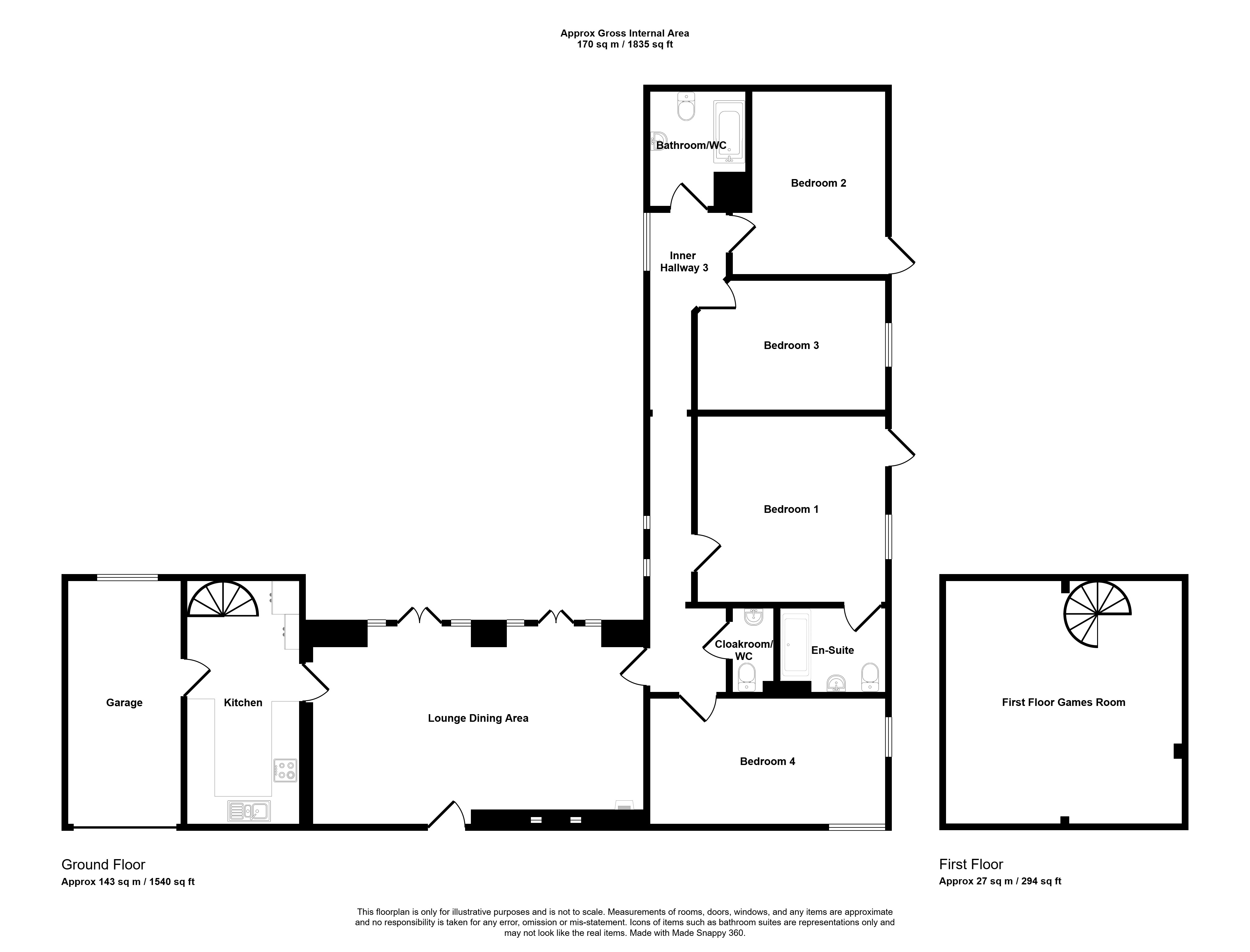
Ground Floor
Lounge/Dining Room 25'6" x 12'2" (7.77m x 3.7m). A simply stunning living space with vaulted ceiling and exposed beams plus solid oak flooring, providing a lounge area and a dining area.
Additional Lounge/Dining Room Photo
Additional Lounge Photo The lounge area features a modern corner electric fire with two double glazed windows to the front and a large double glazed arched window to the rear.
Additional Dining Area Photo The dining area provides ample space for a formal dining table and chairs with a large double glazed window and door to the rear. Door leads through to the kitchen.
Kitchen 17'8" x 8'2" (5.38m x 2.5m). A superb modern kitchen fitted with a range of wall and base units, integrated electric oven with gas hob and extractor hood above, integrated dishwasher and washing machine, tiled splashback and tiled floor, radiator. Door to the garage. Spindal staircase leads up to games room.
Additional Kitchen Photo
First Floor
Games Room 17'7" x 17'1" (5.36m x 5.2m). A good size room currently used as a games room situated above the kitchen and garage.
Inner Hallway Doors lead to the four bedrooms, family bathroom/WC and cloakroom/WC. Double glazed windows to the side and radiators.
Additional Inner Hallway Photo
Cloakroom/WC Fitted with a low level WC and wash basin. Radiator.
Bedroom One 14'3" x 14'1" (4.34m x 4.3m). Quality fitted wardrobes, double glazed windows to the side, radiator, door to the en suite.
Additional Bedroom One Photo
En Suite Shower Room/WC 7'7" x 6'4" (2.3m x 1.93m). A stunning recently installed en suite comprising; large shower cubicle. low level WC and wash basin set in a vanity unit, tiled walls and floor, heated towel rail and electric demisting mirror.
Bedroom Two 14'1" x 9'9" (4.3m x 2.97m). Fitted wardrobes, radiator, two double glazed windows.
Bedroom Three 17'8" x 9'8" (5.38m x 2.95m). Double glazed window to the side and radiator.
Bedroom Four 13'7" x 11'4" (4.14m x 3.45m). Fitted wardrobes, radiator. Double glazed door to the Garden.
Bathroom/WC 8'8" x 7'4" (2.64m x 2.24m). Fitted with a white suite comprising; panelled bath with shower above, low level WC and wash basin, part tiled walls and Karndean floor, heated towel rail and airing cupboard.
Garage 18'10" x 8'10" (5.74m x 2.7m). With light and power supply.
External There is a lawned garden to the front of the property with a mature planted border. To the rear there is a paved south facing private courtyard with a stone wall boundary with gated access to the communal courtyard which provides space for off street parking and access to the garage.
Additional External Photo
Additional External photo 2 South facing private courtyard.
Additional External photo 3 The Barn
Tenure Freehold
Council Tax North Tyneside Council Tax Band D
Mortgage Advice A comprehensive mortgage planning service is available via Darren Smith of NMS Financial Limited. For a free initial consultation contact Darren on 0191 2510011.
**Your home may be repossessed if you do not keep up repayments on your mortgage**
Location Map
Energy Performance Certificate EPC Rating C
Read less